Kalundborg Kommune skal være et godt sted at bo og leve for alle mennesker - hele livet.
Det er centralt for kommunens positive udvikling, at nuværende borgere trives i vores lokalsamfund, og at nye borgere finder det attraktivt at flytte til og bosætte sig. Der er mange faktorer, der gør Kalundborg kommune til et godt sted at bo og leve. I dette afsnit er fokus på boligudvikling og udvikling af fritids- og kulturlivet
Mål
- Nye boliger der opfylder nutidige ønsker til beliggenhed, kvalitet, størrelse, pris og ikke mindst mulighed for fællesskab
- Attraktive, mangfoldige, tilgængelige og synlige fritids- og kulturtilbud, der faciliterer skabelsen af netværk og medvirker til, at flere oplever kultur, bevægelse og natur i hverdagen
- Bosætningen skal komme hele kommunen til gode
For at nå disse mål, vil der i den kommende planperiode bl.a. blive arbejdet med:
Visualisering (vejledende) af forslag til ny ankomst og udsigtspunkt ved den tidligere Vestborg i Kalundborg.
På Kommunalbestyrelsesmøde den 20. september 2023 vedtog Kommunalbestyrelsen en Helhedsplan for Højbyen i Kalundborg, som en retningsgivende plan for den fremtidige udvikling af Højbyen. Planens formål er at formidle Højbyens unikke middelalderhistorie og anvende dens kvaliteter som løftestang for en fremtidig udvikling af området. Planens hovedgreb er at give en forstærket oplevelse af Højbyen som unik middelalderfæstningsby og iscenesætte og anvende de væsentligste historiske elementer fra middelalderen.
Ambitionen med helhedsplanen er todelt: At styrke det oplevelsesøkonomiske fundament for kulturturismen som erhvervsindsats, og at styrke bosætningsindsatsen ved at styrke den lokale selvforståelse og stolthed over egnens historie, som er af national betydning.
Helhedsplanen peger på syv nedslagsområder, som er konkrete steder i Højbyen, der på hver sin måde formidler middelalderarven.
For hvert nedslagsområde arbejdes der med tre greb:
- Det faglige, som har fokus på formidling af middelalderbyen
- Det folkelige, som har fokus på at skabe attraktive steder for besøgende og byens borgere
- Forbindelsen, som kobler de forskellige nedslagspunkter på resten af Højbyen og Kalundborg
Helhedsplanen sætter rammerne for, hvordan Højbyen kan udvikle sig med fokus på at styrke de stedbunde kvaliteter og den unikke historie til gavn for såvel byens borgere, besøgende og erhvervet.
Tegning arbejdet af CEBRA Architecture
Udvikling af Havneparken
Siden 2015, da siloen på havnefronten i Kalundborg blev revet ned, er der skabt en attraktiv Havnepark, der binder byen og havnen sammen. Den inddragende proces med byens borgere og foreninger, har resulteret i at Havneparken er forankret socialt og kulturelt.
Omdannelsen af Havneparkens har været udviklet gennem 3 delprojekter:
Den centrale plads
Området er en åben plads til både events og dagligdags udfoldelse, som knytter sig til by- og havnemiljø. På de grønne arealer er der plads til aktiv udfoldelse, legeplads, volleybane, scene og storskærm til arrangementer, m.m.
Kajkanten
Renovering af kajkanterne fra øst og til lystbådehavnen i vest, med promenade langs vandet, giver mulighed for ophold, fiskeri, fritids- og lystsejlads. I forbindelsen til den centrale plads er det gjort muligt at komme tættere på vandet og benytte badezonen.
Aktivitetszonen
I den østlige ende af Havneparken er der etableret nybygget fælleshus, som indeholder et picnicrum, offentlige toiletter og café. Derudover er der plads til nye aktiviteter på de åbne grusarealer, hvor også den interaktive aktivitetsvæg findes.
Pakhuset
I den kommende periode skal der videreudvikles på Pakhuset. Der søges om støtte til at omdanne Pakhuset til kulturhus, som kan understøtte aktiviteterne på den centrale plads. Ligeledes vil der i forbindelse med renovering af lystbådehavnen, blive arbejdet på udvikling af aktiviteter i vandet.
Målet er at skabe bedre rammer for alle de eksisterende aktiviteter på lands og til vands, men samtidig kunne tiltrække nye aktiviteter for både foreningslivet, skoler, erhverv, turister og den daglige bruger af byens rekreative pladser.
I omdannelsen lægges der vægt på fleksible løsninger, sådan at Skibbroen giver mulighed for en videreudvikling af aktiviteterne i Havneparken.
Med afsæt i de allerede etablerede delområder, har kommunen i 2019-2020 haft en inddragelsesproces i forbindelse med skitseringen af de ydre værker til lystbådehavnen. For fortsat at skabe ejerskab blandt byens borgere, vil denne inddragelsesproces danne ramme for de aktiviteter, der er mulighed for i havnebassinet.
DSB udfører i 2025-26 et renoveringsprojekt, hvor stationsbygningen og de omkringliggende arealer renoveres. Projektets vision er at samle de stationsrelaterede funktioner på østsiden og skabe mere lys og åbenhed på stationen ved at fjerne perrontage og mellembygningen mellem stationsbygningen og pakhuset ved stationen. Samtidig etableres en ny forplads i Jernbanegade, og i direkte tilknytning til denne en forbindelsesakse langs stationsbygningen, så alle de passagerrelaterede funktioner bliver forbundet i en ny, overskuelig stationspassage med faciliteter og opholdsmuligheder. Banegårdspladsen vil efter ombygningen ikke længere have direkte relation eller funktion til stationen, hvilket kan åbne op for på sigt at gentænke de kommunale arealer omkring stationen og skabe ny sammenhæng til Samsøfærgen, Havneparken og Kulturhuset i Havneparken samt mod Vænget-Banegårdspladsen.
Visualisering (vejledende) af muligt boligprojekt på Herredsåsen, udarbejdet af Arken. Planlægningen har haft fokus på at skabe rammerne for forskellige typer boliger i tæt tilknytning til naturen og landskabet.
I den nordlige del af Kalundborg by ligger Herredsåsen, som er et stort område til boligudvikling. Området byder på store landskabelige herlighedsværdier af forskellig karakter – fra storslåede udsigter fra åsens højderyg til et interessant dallandskab med moser og søer.
Udviklingen af boligområdet tager udgangspunkt i at fastholde og styrke de stedbundne kvaliteter som særligt værdifulde natur- og landskabsrum, kultur- og fortidsminder, værdifulde kig og væsentlig grønne forbindelser og stier, og dermed skabe større spillerum for boligudviklerne til at præge udformningen af selve bebyggelsen.
Boligdrømme på Herredsåsen
Planlægningen på Herredåsen udspringer fra Helhedsplan for Herredsåsen, som har fokus på er at skabe en fleksibel plan, som varetager nogle væsentlige principper, og som kan imødekomme forskellige boligdrømme. Helhedsplanen blev i den forrige kommuneplanperiode udmøntet i to lokalplaner.
Planerne har fokus på at sikre nogle væsentlige landskabs- og naturhensyn, samtidig med at skabe nogle gode udbygningsmuligheder for forskellige typer boliger, fra små rækkehuse til etagelejligheder.
Dispositionsplan for det nordøstlige del af Kalundborg. Planen er vejledende og bør ikke opfattes som en præcis anvisning for områdets udformning. De væsentlige principper for planen er, at boligområderne skal brydes ned i grupper for at skabe forskellige kvarterer og fællesskaber. Boliggrupperne skal have adgang til sammenhængende, blågrønne bånd, hvor der er plads til natur, vand og rekreative faciliteter. Området skal betjenes via en central fordelingsvej gennem området, som fortsætter langs områdets østlige afgrænsning. I områdets kant mod det åbne land skal der arbejdes med at trække landskabet ind i bebyggelsen og skabe en grøn profil, som markerer overgangen mellem land og by. Planen er udarbejdet før Planloven foreskrev krav om særlige naturbeskyttelseshensyn (Grønt Danmarkskort) og forebyggelse for oversvømmelse og erosion. Der kan læses om disse krav/temaer under hovedtemaet Natur og Vand.
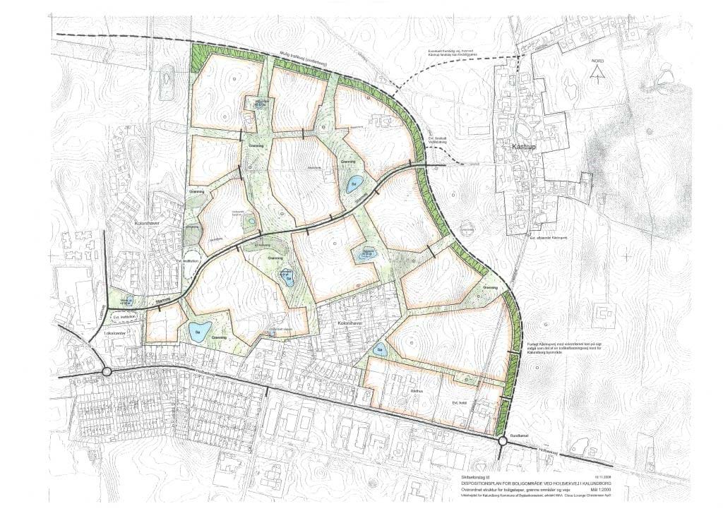
I den østlige del af Kalundborg, nord for Holbækvej, med adgang fra Klosterlunden og i retning mod Kåstrup, findes et nyt byudviklingsområde med en blanding af rækkehuse og etagehuse. Se dispositionsplanen her.
Det er tanken at udvikle et grønt byområde på grundlag af områdets eksisterende terræn, bevoksning og vådområder. Disse elementer styrkes i en struktur, hvor grønne bånd med bakker og dale, adskiller boligområderne i overskuelige enheder. Denne grønne struktur underbygges gennem tværgående passager. Mod det åbne land, i respektfuld afstand fra Kåstrup landsby, plantes et kraftigt skovbælte, som udgør byområdets grønne ryg og som skaber ledelinjer for dyr og planter.
Bydelen vil indeholde minder fra det nuværende landbrugslandskab i form af udvalgte bygningsfaciliteter fra gårdene, haveanlæg med træplantninger, levende hegn, stengærde og vandhuller. Der vil blive anlagt cykelstier med forbindelse til Kalundborg Midtby og til de mange kolonihaver i området. Bebyggelse i området vil blive opført ud fra betragtninger om lavt klimaaftryk mht. lægivende plantninger, høj bebyggelsestæthed og skabelse af cirkulære stofkredsløb med fokus på lokal genanvendelse.
Centralt i Høng foreslås det store erhvervsareal “Invacaregrunden” ved Østergade omdannet til boliger og lettere erhverv.
Området omdannes til en bymæssig parkorienteret bebyggelse, der kan berige Høng Bymidte med grønne arealer og ved at blive koblet til Bygaden. Bebyggelsen langs Østergade er udpeget som bevaringsværdig, og husenes tænkes bevares i deres nuværende skikkelse.
På denne måde bevares det bedste fra den store virksomhed, der blev startet af fabrikant Vilhelm Pedersen og fik stor betydning for Høng by. Disse frontbygninger vil fortsat kunne benyttes af byens virksomheder. Samtidig bliver der mulighed for nye tidssvarende boliger på de bagvedliggende arealer, hvor virksomhedens produktionshaller stadig findes.
Den fremtidige bebyggelse, på arealet bag virksomhedens kontorbygninger mv. kan evt. udføres som punkthuse placeret i mindre klynger med 50-60 boliger i et åbent parkstrøg.
Projekt Gørlev Svømmehal
Projekt Gørlev Svømmehal udspringer af kommunalbestyrelsens budgetaftale indgået i 2022, hvor der i de uddybende bemærkninger (U25) står:
”Det har været et mangeårigt ønske i den sydlige del af kommunen at få mulighed for svømning. Gørlev er et trafikknudepunkt for den sydlige del af kommunen, og vil derfor kunne opnå et stort antal brugere af en svømmehal, da mange skoler, efterskoler, borgere og turister nemt kan komme dertil. Svømmehallen ønskes etableret efter den Hollandske model ”2521”, hvor svømmehallerne har lave drifts- og etableringsomkostninger. Svømmehallen skal søges etableret på de arealer kommunen har købt fra sukkerfabrikken”
Kommunalbestyrelsen vedtog den 26. juni 2024 et kommissorium, der sætter rammen for processen og organisering af opgaven. Der er nedsat en politisk styregruppe til at stå i spidsen for projektet.
Den indledende fase i 2. halvår 2024, hvor der er indhentet inspiration, viden og udført indledende geotekniske undersøgelser, blev afsluttet i foråret 2025. Kommunalbestyrelsen har på møde den 26. marts 2025 besluttet at igangsætte udarbejdelsen af en lokalplan for et areal ved den nedlagte Sukkerfabrik i Gørlev, hvor svømmehallen ventes placeret.
Der bliver udarbejdet et byggeprogram og anlægsbudget i 2025, hvorefter Kommunalbestyrelsen tager stilling til om anlægsarbejdet skal igangsættes i 2026.
Svømmehallen skal indeholde et 25-meter bassin med 6 baner og et mindre varmtvandsbassin. Bassinerne bygges som en stålkonstruktion oven på jorden – i stedet for som i traditionelle svømmehaller at udgrave og støbe betonbassiner, der beklædes med fliser. Den nærmere beskrivelse af svømmehallens udformning og funktioner vil fremgå af byggeprogrammet, når det er udarbejdet.





